Șahin Residence! Centru, str. Moara Roșie, 2 camere + living. Euroreparație!
54 Vizualizări
375 000 €
2 640.85 € / m2
Specialist Imobiliar Chișinău, Centru
Nedoruban Alexandr
Telefon: +373 68722972

6 \ 7

2 camere + living

Bloc nou

Reparație euro

Încălzire autonomă

142 m2

1 balcon

1 baie

Specialist Imobiliar Chișinău, Centru
Nedoruban Alexandr
Telefon: +373 68722972
Descriere

„Dacă mergi oriunde, chiar și în paradis, vei tânji după acasă.”
Malala Yousafzai

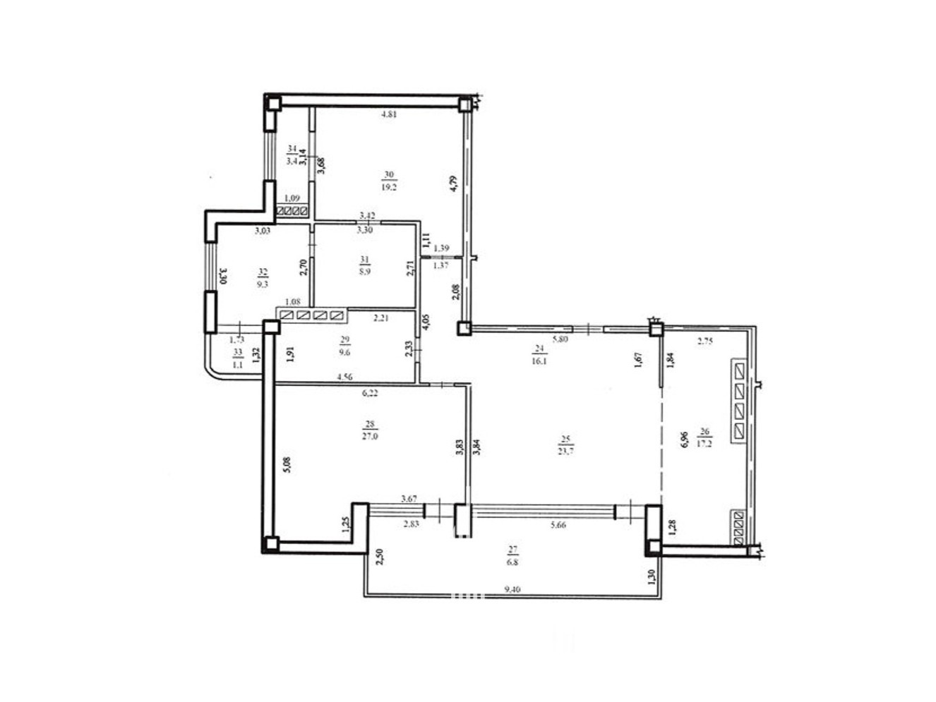
Oferim spre vânzare apartament cu 2 camere + living în complexul locativ Șahin Residence construit de compania Șahin Construction, amplasat în sectorul Centru, str. Moara Roșie. Locuința se desfășoară pe o suprafață de 142 m2, localizat la etajul 6 din 7, fiind compartimentat în: 2 camere, living, bucătărie, garderobă, terasă, bloc sanitar și antreu.

  • euroreparație;
  • încălzire autonomă;
  • geamuri termopane REHAU;
  • fațadă din cărămidă roșie;
  • izolare fonică și termică de calitate înaltă;
  • parchet, ușă blindată și uși din lemn;
  • mobilă + tehnică de uz casnic;
  • sistem de aer condiționat;
  • încălzire prin pardoseală;
  • curte de tip închis;
  • supraveghere video;
  • teren de joacă pentru copii;
  • zonă de agrement pentru maturi;
  • parcare subterană și de tip deschis.

   În imediata apropiere se regăsesc diverse magazine alimentare și de uz casnic, sucursale bancare, farmacii, restaurante, grădiniță, școală.

   Reamintim! Aveți posibilitate să procurați apartamentul în credit cu doar 30% rată inițială!

   Dacă doriți să procurați sau să vindeți o proprietate imobiliară, atunci specialiștii imobiliari ai companiei LOYAL sunt onorați să vă reprezinte și să vă asigure o tranzacție profitabilă, lipsită de stres. Calificarea înaltă a specialiștilor cât și baza de date a proprietăților imobiliare de care dispunem, ne oferă posibilitatea de a presta servicii de calitate, tuturor clienților noștri.

Lasă o solicitare
Lasa o solicitare si vom gasi cea mai buna oferta.
Trimis cu success
Satisfacția clienților este prioritatea noastră principală din acest motiv un reprezentant al companiei LOYAL va reveni în cel mai apropiat timp.
Închide